液压式安全阀
产品型号:GYA
发布时间:2008-5-20
GYA液压安全阀详细说明:
GYA系列液压式安全阀是(活瓣式)呼吸阀的安全备用设备,它的吸气和呼气的动作压力略高于(活瓣式)呼吸阀,在呼吸阀一旦失灵或在冬季其活瓣冻结时,液压安全阀的液封即被破坏从而保护油罐免遭破坏。液压安全阀装于油罐顶部与呼吸阀配合使用。
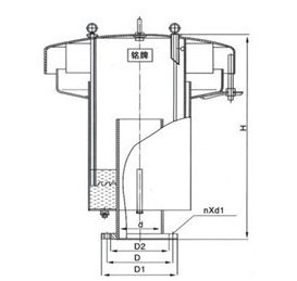
GYA液压安全阀结构示意图:


GYA液压安全阀外形尺寸和连接尺寸:
| 型号 | 规格 | 安装尺寸(毫米) | 重量 | ||||||
| d | D | D1 | D2 | n-d1 | L | H | |||
| GYA-80 | 80 | ø85 | ø185 | ø150 | ø125 | 4-ø18 | 376 | 424 | 38 |
| GYA-100 | 100 | ø105 | ø205 | ø170 | ø145 | 4-ø18 | 500 | 605 | 42 |
| GYA-150 | 150 | ø148 | ø260 | ø225 | ø200 | 8-ø18 | 650 | 705 | 66 |
| GYA-200 | 200 | ø210 | ø315 | ø280 | ø255 | 8-ø18 | 900 | 755 | 97 |
| GYA-250 | 250 | ø264 | ø370 | ø335 | ø310 | 12-ø18 | 1050 | 885 | 140 |
液压安全阀控制的压力或真空值比机械呼吸阀高10%,因此在正常情况下是不会动作的。阀内用沸点高(夏天不易挥发)、蒸发慢、凝点低(冬天不至于凝固)的油品(如轻柴油、太阳油或变压器油)作为密封液体(简称封液)。本类阀门在管道中一般应当水平安装。
液压安全阀一种安全保护用阀,它的启闭件受外力作用下处于常闭状态,当设备或管道内的介质压力升高,超过规定值时自动开启,通过向系统外排放介质来防止管道或设备内介质压力超过规定数值。安全阀属于自动阀类,主要用于锅炉、压力容器和管道上,控制压力不超过规定值,对人身安全和设备运行起重要保护作用。 按安全阀阀瓣开启高度可分为微启式安全阀和全启式安全阀,微启式安全阀的开启行程高度为:≤0.05d0(*小排放喉部口径);全启式安全阀开启高度为≤0.25d0(*小排放喉部口径)。
安装和维护注意事项
各种安全阀都应垂直安装。
安全阀出口处应无阻力,避免产生受压现象。
安全阀在安装前应专门测试,并检查其官密封性。
对使用中的安全阀应作定期检查。
安装符合要求
(l)额定蒸发量大于0.5t/h的锅炉,至少装设两个安全阀:额定蒸发量小于或等于0.5t/h的锅炉,至少装一个安全阀。可分式省煤器出口处、蒸汽过热器出口处都必须装设安全阀。
(2)安全阀应垂直安装在锅商、集箱的*高位置。在安全阀和锅筒或集箱之间,不得装有取用蒸汽的出口管和阀门。
(3)杠杆式安全阀要有防止重锤自行移动的装置和限制杠杆越轨的导架,弹簧式安全阀要有提升手把和防止随便拧动调整螺钉的装置。
(4)对于额定蒸汽压力小于或等于3.82MPa的锅炉,安全阀喉径不应小于25mm:对于额定蒸汽压力大于3.82MPa的锅炉,安全阀喉径不应小于20mm。
(5)安全阀与锅炉的连接管,其截面积应不小于安全阀的进口截面积。如果几个安全阀共同装设在一根与锅筒直接相连的短管上,短管的通路截面积应不步于所有安全阀排汽面积的1.25倍。
(6)安全阀一般应装设排汽管,排汽管应直通安全地点,并有足够的截面积,保证排汽畅通。安全阀排气管底部应装腔 作势有接到安全地点的疏水管,在排气管和疏水管上都不允许装设阀门。