主安全阀
产品型号:A49H
发布时间:2008-5-7
GA49H-4 DN25主要用于电站锅炉、压力容器、减温减压装置等设备,防止压力超过允许最高压力值,保证设备安全运行。
下一个产品:双杠杆安全阀
上一个产品:带散热器弹簧全启式安全阀
相关产品:
不锈钢高压安全阀
TFA48SH-64高温高压安全阀
带散热器弹簧全启式安全阀A40Y
GA42Y-100单杠杆安全阀
内装式安全阀TANA42F
A28H带手柄弹簧全启式安全阀
A46F(Y)先导式安全阀
A44Y带扳手弹簧全启式安全阀
A41H弹簧微启封闭式高压安全阀
A21H不锈钢弹簧微启式安全阀
弹簧微启式螺纹安全阀
保温夹套安全阀
脉冲式安全阀
带扳手弹簧全启式蒸汽安全阀
弹簧微启式氧气安全阀
液压式安全阀
微启弹簧式安全阀
真空负压安全阀
先导式安全阀
单杠杆安全阀
双杠杆安全阀
主安全阀
带散热器弹簧全启式安全阀
高温高压安全阀(电站用)
全启式超高压安全阀
安全溢流阀
弹簧微启式高压安全阀(焊接式)
弹簧全启式安全阀
带手柄弹簧全启式安全阀
弹簧微启封闭式安全阀
弹簧微启式外螺纹安全阀
波纹管平衡式安全阀
双联弹簧式安全阀
平行式安全回流阀
液化石油气安全阀
弹簧全启封闭式安全阀
带扳手弹簧微启式安全阀
弹簧全启封闭式高压安全阀
弹簧微启封闭式高压安全阀
空压机安全阀
主安全阀说明:
主要用于电站锅炉、压力容器、减温减压装置上使用,防止压力超过允许*高压力值,保证设备安全运行。
主安全阀结构简述:
1、当介质压力升高到整定压力时,冲量安全阀打开,介质从脉冲管进入主安全阀的活塞室,推动活塞下降,使阀门自动打开,当冲量阀关闭时,阀瓣又自动关闭。
2、密封面用钴基铬镍不锈钢堆焊而成,阀瓣经热处理,提高了耐磨性和抗冲蚀性。
主安全阀安装说明:
1、阀门必须垂直安装在设备的*高位置。
2、主安全阀紧固在支座上,支座承受主安全阀排汽时产生的反座力。
3、排汽管应有专门吊架,排汽管重量不得加在主安全阀上,主安全阀与排汽管之间的连接法兰应消除任何的附加预应力。
4、排汽管的*低点应考虑疏水,以免排汽时产生水击。
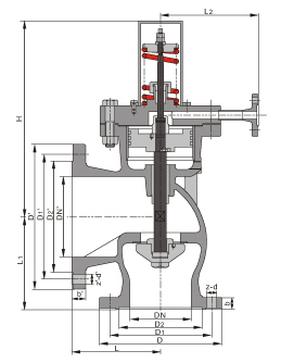
主安全阀结构尺寸图:

主安全阀主要外形及连接尺寸:
| 型号 | 公称通径 | 连接尺寸 | ||||||||||||||
| L | L1 | L2 | H | D | D1 | D2 | b | z-d | DN' | D' | D1' | D2' | b' | z'-d' | ||
| A49H-4 | 150 | 220 | 230 | 240 | 486 | 300 | 250 | 204 | 30 | 8-25 | 200 | 360 | 310 | 278 | 34 | 12-25 |
| A49H-4 | 200 | 270 | 295 | 330 | 615 | 375 | 320 | 260 | 38 | 12-30 | 300 | 485 | 430 | 390 | 40 | 16-30 |
| A49H-4 | 250 | 300 | 350 | 370 | 646 | 445 | 385 | 313 | 42 | 12-34 | 350 | 550 | 490 | 450 | 44 | 16-34 |