A46F先导式安全阀产品介绍:
先导式安全阀是一种由主阀和导阀组成的一种新颖结构的安全阀,导阀响应系统介质压力自身动作从而控制主阀的开关动作。
A46F先导式安全阀工作原理:
当系统正常工作,先导式安全阀处于关闭状态时,系统压力通过进口压力管、导阀和气室压力管传到主阀阀瓣顶部的圆顶气室,从而在主阀瓣上产生了一个向下的净作用力,使主阀处于关闭状态。当系统压力达到整定压力时,导阀开启且滑梭封闭导阀进气通道,主阀气室的压力通过导阀排放卸压,由于系统压力高于回座压力,滑梭封闭进气通道,从而隔断流体在导阀中的流动,这时主阀气室的压力急剧下降,主阀阀瓣完全打开,流体通过主阀泄放降压。当系统压力降到一定值时,导阀的弹簧力克服了阀进口压力作用在滑梭上的力,导阀回座,顶杆顶开滑梭,*后使得流体重新进入主阀的圆顶气室,关闭主阀。
A46F先导式安全阀应用范围:
先导式安全阀特别适用于高背压、大流量、高压力和安装位置紧凑的场所应用。先导式安全阀主要用于石油天然气、化工、电力、冶金和城市燃气等领域,是受压设备、容器或管路上的*佳超压保护装置。
A46F先导式安全阀结构特点:
1、阀座软密封保证安全阀起跳前后的良好密封性。
2、允许工作压力接近安全阀的整定压力。
3、较小超压就能使安全阀主阀迅速达到全启状态。
4、安全阀动作性能和开启高度不受背压的影响。
5、启闭压差可调。
6、导阀不流动型结构设计减少了有害介质的排放和环境污染。
7、可在线检测安全阀的整定压力。
先导式安全阀的主要优点是变弹簧直接作用为导阀间接作用,提高了动作的灵敏度,而且主阀采用套筒活塞式,双重密封阀座结构,动作精度高、重复性好、回座快、不泄漏、能带高背压排放、工作等命长、工作稳定可靠,它还可在线调校,反复启跳排放后,仍然能自动回座,关闭严密,操作维护方便。
A46F先导式安全阀标准规范:
结构长度标准:GB/T 12221-2005
连接法兰标准:GB/T 9113
压力温度等级:GB/T 12224-2005
试验检验标准:GB/T 13927-2008
A46F先导式安全阀主要零部件材料:
| NO. | 零件名称 | Ax46Y/F 材料 | KAX46Y/F材料 |
| 1 | 阀体 | WCB | WCB |
| 2 | 阀瓣 | 2Cr13/2Cr13+PTFE | 1Cr18Ni9Ti/1Cr18Ni9Ti+PTFE |
| 3 | 导向套 | 1Cr18Ni9Ti | 1Cr18Ni9Ti |
| 4 | 弹簧 | 50CrVA | 50CrVA |
| 5 | O型圈 | 氟橡胶 | 氟橡胶 |
| 6 | 阀盖 | 25 | 25 |
| 7 | 导阀 | 部件 | |
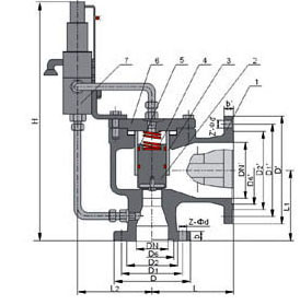
A46F先导式安全阀产品图片及结构图:

A46F先导式安全阀外形尺寸和连接尺寸:
| 型号 | 公称通径 | do | L | L1 | L2 | H | DN' | D | D1 | D2 | D6 | b | Z-ød | D' | D1' | D2' | D6' | b' | Z'-ød' | ||||
AF46Y-16 |
25 | 15 | 110 | 95 | 150 | 365 | 32 | 115 | 85 | 65 | 16 | 4-14 | 140 | 100 | 78 | 18 | 4-18 | ||||||
| 32 | 20 | 115 | 100 | 150 | 375 | 40 | 140 | 100 | 78 | 18 | 4-18 | 150 | 110 | 85 | 18 | 4-18 | |||||||
| 40 | 25 | 120 | 110 | 160 | 390 | 50 | 150 | 110 | 85 | 18 | 4-18 | 165 | 125 | 100 | 20 | 4-18 | |||||||
| 50 | 32 | 135 | 120 | 160 | 410 | 65 | 165 | 125 | 100 | 20 | 4-18 | 185 | 145 | 120 | 20 | 4-18 | |||||||
| 65 | 40 | 160 | 140 | 175 | 435 | 80 | 185 | 145 | 120 | 20 | 4-18 | 200 | 160 | 135 | 20 | 8-18 | |||||||
| 80 | 50 | 170 | 135 | 175 | 451 | 100 | 200 | 160 | 135 | 20 | 8-18 | 220 | 180 | 155 | 22 | 8-18 | |||||||
| 100 | 65 | 195 | 175 | 195 | 500 | 125 | 220 | 180 | 155 | 22 | 8-18 | 250 | 210 | 185 | 24 | 8-18 | |||||||
| 125 | 80 | 210 | 190 | 220 | 526 | 150 | 250 | 210 | 185 | 22 | 8-18 | 285 | 240 | 210 | 24 | 8-23 | |||||||
| 150 | 100 | 255 | 230 | 265 | 623 | 175 | 285 | 240 | 210 | 24 | 8-23 | 315 | 270 | 240 | 26 | 8-23 | |||||||
| 200 | 125 | 300 | 260 | 300 | 690 | 250 | 340 | 295 | 265 | 26 | 12-23 | 405 | 355 | 320 | 30 | 12-26 | |||||||
AF46Y-25 |
25 | 15 | 110 | 95 | 150 | 365 | 32 | 115 | 85 | 65 | 16 | 4-14 | 140 | 100 | 78 | 18 | 4-18 | ||||||
| 32 | 20 | 115 | 100 | 150 | 375 | 40 | 140 | 100 | 78 | 18 | 4-18 | 150 | 110 | 85 | 18 | 4-18 | |||||||
| 40 | 25 | 120 | 110 | 160 | 390 | 50 | 150 | 110 | 85 | 18 | 4-18 | 165 | 125 | 100 | 20 | 4-18 | |||||||
| 50 | 32 | 135 | 120 | 160 | 410 | 65 | 165 | 125 | 100 | 20 | 4-18 | 185 | 145 | 120 | 20 | 4-18 | |||||||
| 65 | 40 | 160 | 140 | 175 | 435 | 80 | 185 | 145 | 120 | 22 | 8-18 | 200 | 160 | 135 | 20 | 8-18 | |||||||
| 80 | 50 | 170 | 135 | 175 | 451 | 100 | 200 | 160 | 135 | 22 | 8-18 | 220 | 180 | 155 | 22 | 8-18 | |||||||
| 100 | 65 | 195 | 175 | 195 | 500 | 125 | 230 | 190 | 160 | 24 | 8-23 | 250 | 210 | 185 | 22 | 8-18 | |||||||
| 125 | 80 | 210 | 190 | 220 | 526 | 150 | 270 | 220 | 188 | 28 | 8-26 | 285 | 240 | 210 | 24 | 8-23 | |||||||
| 150 | 100 | 255 | 230 | 265 | 623 | 175 | 300 | 250 | 218 | 30 | 8-26 | 310 | 270 | 240 | 26 | 8-23 | |||||||
| 200 | 125 | 300 | 260 | 300 | 690 | 250 | 360 | 310 | 278 | 34 | 12-26 | 405 | 355 | 320 | 30 | 12-26 | |||||||
AF46Y-40 |
25 | 15 | 110 | 95 | 150 | 365 | 32 | 115 | 85 | 65 | 58 | 16 | 4-14 | 140 | 100 | 78 | 18 | 4-18 | |||||
| 32 | 20 | 115 | 100 | 150 | 375 | 40 | 140 | 100 | 78 | 66 | 18 | 4-18 | 150 | 110 | 85 | 18 | 4-18 | ||||||
| 40 | 25 | 120 | 110 | 160 | 390 | 50 | 150 | 110 | 85 | 76 | 18 | 4-18 | 165 | 125 | 100 | 20 | 4-18 | ||||||
| 50 | 32 | 135 | 120 | 160 | 410 | 65 | 165 | 125 | 100 | 88 | 20 | 4-18 | 185 | 145 | 120 | 20 | 4-18 | ||||||
| 65 | 40 | 160 | 140 | 175 | 435 | 80 | 185 | 145 | 120 | 110 | 22 | 8-18 | 200 | 160 | 135 | 20 | 8-18 | ||||||
| 80 | 50 | 170 | 135 | 175 | 451 | 100 | 200 | 160 | 135 | 121 | 22 | 8-18 | 220 | 180 | 155 | 22 | 8-18 | ||||||
| 100 | 65 | 195 | 175 | 195 | 500 | 125 | 235 | 190 | 160 | 150 | 24 | 8-23 | 250 | 210 | 185 | 22 | 8-18 | ||||||
| 125 | 80 | 210 | 190 | 220 | 526 | 150 | 270 | 220 | 188 | 176 | 28 | 8-26 | 285 | 240 | 210 | 24 | 8-23 | ||||||
| 150 | 100 | 255 | 230 | 265 | 623 | 175 | 300 | 250 | 218 | 204 | 30 | 8-26 | 310 | 270 | 240 | 26 | 8-23 | ||||||
| 200 | 125 | 300 | 260 | 300 | 690 | 250 | 375 | 320 | 282 | 260 | 38 | 12-30 | 405 | 355 | 320 | 30 | 12-26 | ||||||
AF46Y-64 |
25 | 15 | 110 | 100 | 160 | 365 | 32 | 140 | 100 | 78 | 58 | 22 | 4-18 | 140 | 100 | 78 | 66 | 18 | 4-18 | ||||
| 32 | 20 | 130 | 110 | 160 | 375 | 40 | 155 | 110 | 82 | 66 | 24 | 4-23 | 150 | 110 | 85 | 76 | 18 | 4-18 | |||||
| 40 | 25 | 130 | 120 | 170 | 445 | 50 | 170 | 125 | 95 | 76 | 24 | 4-23 | 165 | 125 | 100 | 88 | 20 | 4-18 | |||||
| 50 | 32 | 135 | 130 | 195 | 460 | 65 | 180 | 135 | 105 | 88 | 26 | 4-23 | 185 | 145 | 120 | 110 | 22 | 8-18 | |||||
| 65 | 40 | 175 | 160 | 225 | 495 | 80 | 205 | 160 | 130 | 110 | 28 | 8-23 | 200 | 160 | 135 | 121 | 22 | 8-18 | |||||
| 80 | 50 | 175 | 160 | 225 | 525 | 100 | 215 | 170 | 140 | 121 | 30 | 8-23 | 235 | 190 | 160 | 150 | 24 | 8-23 | |||||
| 100 | 65 | 195 | 195 | 245 | 565 | 125 | 250 | 200 | 168 | 150 | 32 | 8-26 | 270 | 220 | 188 | 176 | 28 | 8-25 | |||||
| 150 | 100 | 280 | 265 | 265 | 610 | 200 | 345 | 280 | 240 | 204 | 38 | 8-34 | 375 | 320 | 282 | 260 | 38 | 12-30 | |||||
| 200 | 125 | 300 | 295 | 300 | 680 | 250 | 405 | 345 | 300 | 260 | 44 | 12-34 | 450 | 385 | 345 | 313 | 42 | 12-34 | |||||
AF46Y-100 |
25 | 15 | 110 | 100 | 160 | 365 | 32 | 140 | 100 | 78 | 58 | 24 | 4-18 | 140 | 100 | 78 | 66 | 18 | 4-18 | ||||
| 32 | 20 | 130 | 110 | 160 | 375 | 40 | 155 | 110 | 82 | 66 | 24 | 4-23 | 150 | 110 | 85 | 76 | 18 | 4-18 | |||||
| 40 | 25 | 130 | 120 | 170 | 445 | 50 | 170 | 125 | 95 | 76 | 26 | 4-23 | 165 | 125 | 100 | 88 | 20 | 4-18 | |||||
| 50 | 32 | 135 | 130 | 195 | 460 | 65 | 195 | 145 | 112 | 88 | 28 | 4-26 | 185 | 145 | 120 | 110 | 22 | 8-18 | |||||
| 65 | 40 | 175 | 160 | 225 | 495 | 80 | 220 | 170 | 138 | 110 | 32 | 8-26 | 200 | 160 | 135 | 121 | 22 | 8-18 | |||||
| 80 | 50 | 175 | 160 | 225 | 525 | 100 | 230 | 180 | 148 | 121 | 34 | 8-26 | 235 | 190 | 160 | 150 | 24 | 8-23 | |||||
| 100 | 65 | 195 | 195 | 245 | 565 | 125 | 265 | 210 | 172 | 150 | 38 | 8-30 | 270 | 220 | 188 | 176 | 28 | 8-25 | |||||
| 150 | 100 | 280 | 265 | 265 | 610 | 200 | 355 | 290 | 250 | 204 | 46 | 12-34 | 375 | 320 | 282 | 260 | 38 | 12-30 | |||||
| 200 | 125 | 300 | 295 | 300 | 680 | 250 | 430 | 360 | 312 | 260 | 54 | 12-41 | 450 | 385 | 345 | 313 | 42 | 12-34 |