相关产品:
不锈钢内螺纹止回阀产品概述:
H12W不锈钢内螺纹止回阀精度高,外观美,造型小,带有弹簧装置,垂直与水平安装均可等特点.主要适应管道系统中防止介质倒流使用.
内螺纹止回阀主要技术参数:
工作压力H12型为6-16Mpa H13型为4-32Mpa工作介质为<=420 o C 和<=170 o C的水,油,液体全不锈钢材料制造 材料:不锈钢304、不锈钢316、不锈钢316L.
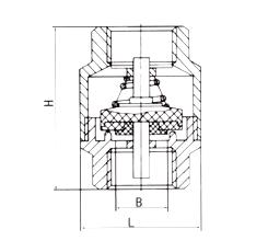
内螺纹止回阀性能参数与主要尺寸:

| 公称通径 DN(mm) | ZG | H | L |
| 15 | 1/2 | 73 | 43 |
| 20 | 3/4 | 85 | 48 |
| 25 | 1 | 95 | 55 |
| 32 | 1-1/4 | 113 | 73 |
| 40 | 1-1/2 | 138 | 86 |
| 50 | 2 | 156 | 98 |