自力式压力华体会体育-华体会(中国)-hth.com
产品型号:ZZYP
发布时间:2009-5-19
ZZYP自力式压力华体会体育-华体会(中国)-hth.com 概述:
ZZYP(N、M)型自力式压力华体会体育-华体会(中国)-hth.com 是不需要任何外加能源,利用被调介质自身能量而实现自动调节的执行器产品。此阀*大特点能在无电、无气的场所工作,同时又节约了能源,压力设定值在运行中可随意调整。采用快开流量特征,动作灵敏、密封性能好,因而广泛应用于石油、化工、电力、冶金、食品、轻纺、机械制造与居民建筑楼群等各种工业设备中各种气体、液体及蒸汽介质减压、稳压(用于阀后调节).或泄压、持压(用于阀前调节)的自动控制。附设冷凝器可在≤350℃温度下使用。
自力式压力华体会体育-华体会(中国)-hth.com 工作原理:
1、阀前控制原理(见图一)
阀前压力控制(K),其初始阀芯的位置在关闭状态。当阀前压力P1通过阀芯、阀座的节流后变为阀后压力P2,同时P1通过管线输入上膜室作用在膜片上,其作用力与弹簧的反作用力相平衡时阀芯位置决定了阀的开度,从而控制阀前压力。 当阀前压力P1增加时,P1作用在膜片上的作用力也随之增加。此时,膜片上的作用力大于设定弹簧的反作用力,使阀芯向离开阀座方向移动,导致阀的开度变大,流阻变小,P1向阀后泄压,直到膜片上的作用力与弹簧反作用力相平衡为止,从而使P1降为设定值。同理,当阀前压力P1降低时动作方向与上述相反,这就是阀前压力调节的工作原理。
图一阀前控制原理
2、阀后控制原理(见图二)
自力式压力华体会体育-华体会(中国)-hth.com 阀后压力控制(B),其初始阀芯的位置在开启状态。当阀前压力P1通过阀芯、阀座的节流后变为阀后压力P2,同时P2经过管线输入上膜室作用在膜片上,其作用力与弹簧的反作用力相平衡时阀芯位置决定了阀的开度,从而控制阀后压力。当阀后压力P2增加时,P2作用在膜片上的作用力也随之增加。此时,膜片上的作用力大于设定弹簧的反作用力,使阀芯关向阀座的位置,导致阀的开度减小,流阻变大,P2降低,直到膜片上的作用力与弹簧反作用力相平衡为止,从而使P2降为设定值。同理,当阀后压力P2降低时,动作方向与上述相反,这就是阀后压力调节的工作原理。
图二阀后控制原理
ZZYP自力式压力华体会体育-华体会(中国)-hth.com 主要技术参数和性能指标:
| 公称通径 (mm) | 20 | 25 | 32 | 40 | 50 | 65 | 80 | 100 | 125 | 150 | 200 | 250 | 300 | |
| 额定流量系数 (KV) | 7 | 11 | 20 | 30 | 48 | 75 | 120 | 190 | 300 | 480 | 760 | 1000 | 1600 | |
| 额定行程 (mm) | 8 | 10 | 14 | 20 | 25 | 40 | 50 | 60 | 70 | |||||
| 公称压力 (MPa) | 1.6、4.0、64 | |||||||||||||
| 压力调节范围 (KPa) |
15-50、40-80、60-100、80-140、120-180、160-220、200-260、240-300、280-350 330-400、380-450、430-500、480-650、540-620、600-700、680-800、780-900 880-1000、600-1500、1000-2500 |
|||||||||||||
| 流量特性 | 快开 | |||||||||||||
| 调节精度 (%) | ±5 | |||||||||||||
| 使用介质 | 热水、蒸汽、各种气体及低粘度介质 | |||||||||||||
| 使用温度 (℃) | ≤80、4350 | |||||||||||||
| 允许泄漏量 | 硬密封 (1/h) | 单座:≤10-4阀额定容量(IV级);双座、套筒:≤5×10-3阀额定容量(ll级) | ||||||||||||
|
软密封 (ml/h) |
0.15 | 0.30 | 0.45 | 0.60 | 0.90 | 1.7 | 4.0 | 6.75 | 11.10 | 11.60 | ||||
| 减压比 | *大 | 10 | ||||||||||||
| *小 | 1.25 | |||||||||||||
ZZYP自力式压力华体会体育-华体会(中国)-hth.com 主要零件材料:
| 零件名称 | 材料 |
| 阀体 | ZG230-450、ZG1Cr18Ni9Ti、ZGCr18Ni12Mo2Ti |
| 阀芯 | 1Cr18Ni9Ti、Cr48Ni42Mo2Ti |
| 阀座 | 1Cr18Ni9Ti、Cr18Ni12Mo2Ti |
| 阀杆 | 1Cr18Ni9Ti、Cr18Ni12Mo2Ti |
| 橡胶膜片 | 丁晴、乙炳、氟、耐油橡胶 |
| 膜盖 | Q235钢、涂四氟乙烯 |
| 填料 | 聚四氟乙烯、柔性石墨 |
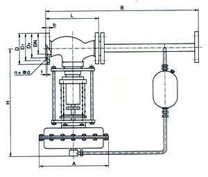
ZZYP自力式压力华体会体育-华体会(中国)-hth.com 结构尺寸图:
ZZYP自力式压力华体会体育-华体会(中国)-hth.com 外形尺寸:
| 公称通径DN (mm) | 法兰接管尺寸 (B) | 法兰端面距离 (L) | 压力调节范围 (KPa) |
重量 (kg) |
导压管 接头 螺纹 |
|||||||||||
| 15~140 | 130~300 | 280~500 | 480~1000 | 600~1500 | 1000~2500 | |||||||||||
| H | A | H | A | H | A | H | A | H | A | H | A | |||||
| 20 | 383 | 150 | 475 | 280 | 455 | 230 | 450 | 176 | 445 | 176 | 445 | 85 | 445 | 85 | 26 | M16×15 |
| 25 | 383 | 160 | 475 | 280 | 455 | 230 | 450 | 176 | 445 | 176 | 445 | 85 | 445 | 85 | 26 | M16×1.5 |
| 32 | 512 | 180 | 520 | 308 | 500 | 230 | 490 | 176 | 480 | 176 | 570 | 96 | 570 | 96 | 37 | M16×1.5 |
| 40 | 512 | 200 | 520 | 308 | 500 | 230 | 490 | 176 | 480 | 176 | 570 | 96 | 570 | 96 | 37 | M16×1.5 |
| 50 | 603 | 230 | 540 | 308 | 520 | 230 | 510 | 176 | 480 | 176 | 600 | 96 | 600 | 96 | 42 | M16×1.5 |
| 65 | 862 | 290 | 710 | 308 | 690 | 230 | 680 | 194 | 670 | 194 | 820 | 96 | 820 | 96 | 72 | M16×1.5 |
| 80 | 862 | 310 | 710 | 308 | 690 | 230 | 680 | 194 | 670 | 194 | 820 | 96 | 820 | 96 | 90 | M16×1.5 |
| 100 | 1023 | 350 | 780 | 308 | 760 | 230 | 750 | 194 | 740 | 194 | 890 | 96 | 890 | 96 | 114 | M16×1.5 |
| 125 | 1380 | 400 | 840 | 308 | 800 | 230 | 790 | 280 | 780 | 280 | 950 | 96 | 950 | 96 | 130 | M16×1.5 |
| 150 | 1380 | 480 | 880 | 308 | 870 | 230 | 860 | 280 | 850 | 280 | 950 | 96 | 950 | 96 | 144 | M16×1.5 |
| 200 | 1800 | 600 | 915 | 308 | 880 | 230 | 870 | 280 | 860 | 280 | 1000 | 96 | 1000 | 96 | 180 | M16×1.5 |
| 250 | 2000 | 730 | 940 | 308 | 900 | 230 | 890 | 280 | 880 | 280 | 1100 | 96 | 1100 | 96 | 200 | M16×1.5 |
| 300 | 2200 | 850 | 1000 | 308 | 950 | 230 | 940 | 280 | 930 | 280 | 1200 | 96 | 1200 | 96 | 250 | M16×1.5 |
- 华体会体育-华体会(中国)-hth.com 的功能和专业术语
- 气动华体会体育-华体会(中国)-hth.com 使用注意事项,气动华体会体育-华体会(中国)-hth.com 如何安装
- 阀门高新技术发展
- 华体会体育-华体会(中国)-hth.com 的基本知识、结构、及安装维修注意事项
- 华体会体育-华体会(中国)-hth.com 常遇故障的解决办法
- 气动华体会体育-华体会(中国)-hth.com 在安装投运中应注意的几点问题
- 华体会体育-华体会(中国)-hth.com 构造的三大流量特性
- 华体会体育-华体会(中国)-hth.com 会产生振动的原因
- 华体会体育-华体会(中国)-hth.com 防火的重要性及措施
- 电站华体会体育-华体会(中国)-hth.com 安装、使用中的几个注意要点