相关产品:
乙炔阻火器阻产品概述:
HF-4-3乙炔阻火器是一种乙炔专用的回火器,采用特种铜合金和不锈钢、碳钢制作而成。它在乙炔管道中具有阻止火苗的特点。可有效地切断火源,杜绝管道中燃爆事故的发生。在工业乙炔管道过程中,越来越显示它的必要性与阻燃的优越性。上海戎钛阀门HF乙炔阻火器爆性能合格,连续13次阻爆性能试验每次均能阻火。耐烧性能合格,耐烧试验1小时无回火现象。壳体水压试验合格。符合国家标准GB5908-86的要求。
乙炔阻火器阻工作原理:
HF乙炔阻火器的作用是防止外部火焰窜入存有易燃易爆气体的设备、管道内或阻止火焰在设备、管道间蔓延。是应用火焰通过热导体的狭小孔隙时,由于热量损失而熄灭的原理设计制造。
乙炔阻火器阻火层:
采用不锈钢"N"形,双层波纹带为阻火芯件而且在芯件内部有一个十字结构的支架(或在表面压上Y形架)借以增强芯件的牢靠性,避免芯件被点燃的介质所产生的爆炸压力冲散。以此原理来设计三角形孔的高度阻止火焰的通过,再加上足够的流道长度来吸收火焰的热量,使其在芯件中熄灭,避免了气体在芯件的另一端被复燃的可能性。
乙炔阻火器阻产品特点:
1、可以迅速阻断火源,杜绝管道中燃爆事故的发生。
2、可以有效地防止乙炔管道阀门在突然开启时易形成的"绝热压缩",局部温度骤升,成为着火能源。
3、可以防止在阀门前后压差作用下,高速运动的物质微粒(如铁锈、粉尘、焊渣等)与阀后管道摩擦、撞击产生火花而成为着火能源。
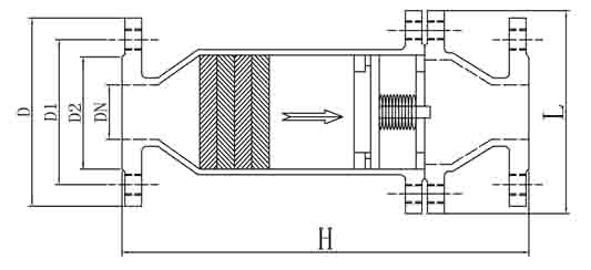
乙炔阻火器阻主要外形和连接尺寸:

| 口径 | L | H | D | D1 | D2 |
| DN20 | 125 | 330 | 105 | 75 | 55 |
| DN25 | 125 | 330 | 115 | 85 | 65 |
| DN50 | 175 | 400 | 160 | 125 | 100 |
| DN80 | 210 | 480 | 195 | 160 | 135 |
| DN100 | 230 | 500 | 215 | 180 | 155 |