CARX复合式排气阀概况:
复合式排气阀用于管路上的*高点或有闭气的地方,排除管内的气体来疏通管道,达到正常工作,如不装排气阀,管内流动的液体产生动热引起气体,形成短路,使管道出水容量达不到要求,其次,管道运转时出现停电、停泵管道会出现负压力,而会引起管道振动或破裂,排(吸)气阀就迅速把空气吸入管内,防止管道振动或破裂。
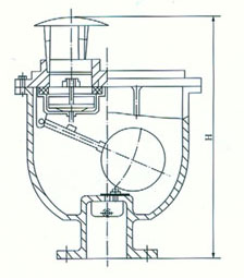
CARX复合式排气阀结构与用途:
CARX复合式排气阀为圆桶状式阀体,共内部主要有不锈钢浮球及塞头。CARX复合式排气阀装设于泵埔出口处或送配水管线中,用以大量排除管道中的集结之空气,以增进水管及抽水机使用效率,且与管内一旦出现负压时,此阀能迅速吸入空气,以保管线因负压所产生损坏。
CARX复合式排气阀作用原理:
当管内开始注水时,塞头停留在开启位置,进行大量排气,当空气排完时,阀内积水浮球被浮起,传动塞头至关闭位置,停止大量排气;当管内水正常输送时,如有少量空气聚集在阀内到相当程度,阀内水位下降,浮球随之下降,此时空气则由小孔排出。当抽水机停止,管内水流空时,或遇管内产生负压时,此时塞头开启,吸入空气确保管线安全。
CARX复合式排气阀零件材质
| 序 号 | 名 称 | 材 质 |
| 1 | 阀 体 | HT200 |
| 2 | 阀 盖 | HT200 |
| 3 | 浮 球 | SUS 304 |
| 4 | 杠杆架 | 铸铜ZH59 |
| 5 | 杆 | 铸铜ZH59 |
| 6 | 塞 头 | 丁睛橡胶NBR |
CARX复合式排气阀结构图:

CARX复合式排气阀主要外形及连接尺寸
| 型 号 |
公称通径 DN(mm) |
尺 寸(mm) | ||||||
| H | L | L1 | D | D1 | D2 | z-φd | ||
|
CARX-1.0 CARX-1.6 |
20 | 375 | 290 | 180 | 105 | 75 | 55 | 4-12 |
| 25 | 375 | 290 | 180 | 115 | 85 | 65 | 4-14 | |
| 50 | 480 | 360 | 205 | 160 | 125 | 100 | 4-14 | |
| 80 | 520 | 405 | 245 | 195 | 160 | 135 | 4-18 | |
| 100 | 530 | 405 | 245 | 215 | 180 | 155 | 4-18 | |
CARX复合式排气阀每小时排气量表
| 规格DN | 25 | 50 | 80 | 100 | 150 | 200 | 250 | 300 | 350 | 400 |
| 立方米/小时 | 2-88 | 85-352 | 22-904 | 34-1413 | 76-3179 | 135-8831 | 212-8831 | 305-12717 | 415-17309 | 542-22608 |