螺旋闸门详细说明:
螺旋闸门是一种粉料、晶粒料、颗粒料及小块物料的流量或输送量的主要控制设备,广泛使用在冶金、矿山、建材、粮食、化工等行业控制流量变化或迅速切断。
螺旋闸门特点:
结构简单、操纵灵活、重量轻、无卡阻、特别适用于各类固体物料和50mm左右块状、团状物料的输送及流量调节,安装不受角度限制,操作方便,能随时调整尺度。
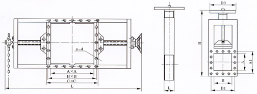
螺旋闸门结构示意图:

螺旋闸门主要零件材料及连接尺寸:
| 类别 | A×A | B×B | C×C | H | L | n-d | 重量 |
| 单向 | 200×200 | 256×256 | 296×296 | 820 | 100 | 8-Φ12 | 62 |
| 250×250 | 306×306 | 346×346 | 930 | 100 | 8-Φ14 | 70.5 | |
| 300×300 | 356×356 | 396×396 | 1050 | 100 | 8-Φ14 | 81 | |
| 400×400 | 456×456 | 496×496 | 140 | 100 | 12-Φ14 | 114 | |
| 450×450 | 510×510 | 556×556 | 1450 | 120 | 12-Φ18 | 130 | |
| 500×500 | 560×560 | 606×606 | 1610 | 120 | 16-Φ18 | 147 | |
| 双向 | 600×600 | 660×660 | 706×706 | 1830 | 120 | 16-Φ18 | 169 |
| 700×700 | 770×770 | 820×820 | 2130 | 140 | 20-Φ18 | 236 | |
| 800×800 | 870×870 | 920×920 | 2440 | 140 | 20-Φ18 | 303 | |
| 900×900 | 974×974 | 1030×1030 | 2660 | 160 | 27-Φ23 | 424 | |
| 1000×1000 | 10741074 | 1130×1130 | 2870 | 160 | 24-Φ23 | 636 | |
| 说明 | LMD-单向 | I-手轮 |
距地面小于1.7米用手轮,大于1.7米用链轮 链条节数M=0.105X-113(X是丝杆中心离地面度度) |
||||
| LMS-双向 | Ⅱ-链轮 | ||||||
华体会体育相关的文章