相关产品:
500X持压泄压阀结构特点和用途:
持压泄压阀由主阀、泄压/持压导阀针阀、球阀、微形过滤器和压力表组成水力控制接管系统。利用水力自动操作,即可以作泄压阀用又可作持压阀用。作泄压阀用时,可维持供水路压力在设定的安全值之下;做持压阀用,可维持主阀上游水压在设定值之上,保持主阀上游供水压力。 持压泄压阀利用水力自力控制,不需要其它装置和能源,保养简便,一阀多用。 持压泄压阀产品广泛用于高层建筑、生活区等供水管网系统及城市供水工程。
500X持压泄压阀工作原理:
1、作泄压阀:当泄压/持压导阀调整为泄压状态时,水通过针阀、主阀控制室、球阀A、泄压/持压导阀、球阀B流向出口,此时主阀处于开启状态。当进口压力超过泄压/持压导阀设定的安全值时,泄压导阀会自动开启,通过球阀C放出部分水,使管路泄压。当压力恢复到安全值时,泄压阀自动关闭。作泄压阀时,各球阀常开。
2、作持压阀:当泄压/持压导阀调整为持压状态时,只要主阀进口水压低于导阀设定值,导阀即关闭。主要控制室升压,主阀关闭。当主阀上游供水压力超过导阀设定压力时,持压导阀才能打开,控制室的水经球阀排至出口,控制室降压主阀开启,开始供水,即保持了上游水压。作持压阀用时,球阀C常闭或用丝堵换下。
500X持压泄压阀主要技术参数:
| 公称压力(Mpa) | 壳体试验压力(MPa) | 密封试验压力(MPa) | 适用介质 | 介质温度(℃) |
| 1.0 | 1.5 | 1.1 | 水 | 0-80 |
| 1.6 | 2.4 | 1.76 | ||
| 2.5 | 3.75 | 2.75 |
500X持压泄压阀主要零件材料:
| 零件名称 | 零件材料 |
| 阀体 阀盖 | WCB |
| 阀座 阀盘 | 铜合金 |
| 密封圈 O型圈 | 丁腈橡胶 |
| 阀杆 | 2Cr13 |
| 弹簧 | 50CrVA |
| 针型阀 | 铜合金 |
| 球阀 | 铜合金 |
| 泄压/持压导阀 | 铜合金 |
| 微型过滤器 | 不锈钢 |
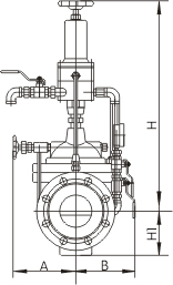
500X持压泄压阀结构尺寸图:

500X持压泄压阀连接尺寸(PN 1.0-2.5MPa):
| 公称通径DN | L | H | H1 | A | B |
| 50 | 250 | 505 | 90 | 170 | 170 |
| 65 | 280 | 520 | 98 | 180 | 180 |
| 80 | 310 | 535 | 110 | 190 | 190 |
| 100 | 350 | 555 | 120 | 200 | 200 |
| 125 | 400 | 590 | 145 | 215 | 215 |
| 150 | 450 | 645 | 155 | 230 | 230 |
| 200 | 550 | 715 | 190 | 255 | 255 |
| 250 | 650 | 780 | 250 | 295 | 295 |
| 300 | 800 | 880 | 290 | 325 | 325 |
| 350 | 900 | 940 | 330 | 380 | 380 |
| 400 | 1000 | 1000 | 360 | 415 | 415 |
| 450 | 1000 | 1030 | 445 | 435 | 435 |
| 500 | 1100 | 1060 | 495 | 460 | 460 |
| 600 | 1100 | 1150 | 550 | 520 | 520 |
| 700 | 1450 | 1210 | 605 | 570 | 570 |
| 800 | 1560 | 1290 | 730 | 620 | 620 |
| 900 | 1800 | 1390 | 800 | 670 | 670 |
| 1000 | 2000 | 1500 | 910 | 830 | 830 |